zweistufiger anonymer projektwettbewerb erneuerung klinikum 2 universitätsspital basel
2012-2013
2. runde
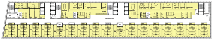
ausgehend von der analyse der topographie sowie der strukturellen ordnung der bestehenden bauten entlang der spitalstrasse und der hebelstrasse wird in zwei primären geometrien ein mehrgeschossiger sockelbau definiert. dieser schafft das flächenangebot für die raumgreifenden bereiche untersuchung und behandlung. das volumen des sockelgebäudes reagiert mit seiner höhe und ausdehnung auf den massstab des umliegenden stadtkörpers.
entlang des petersgrabens wird die gebäudefront bewusst
zurückversetzt. es entsteht ein offener stadtraum, der einen grosszügigen zugang mit den notwendigen funktionen ermöglicht.
in zusammenarbeit mit rapp architekten, basel








